Rye Lane

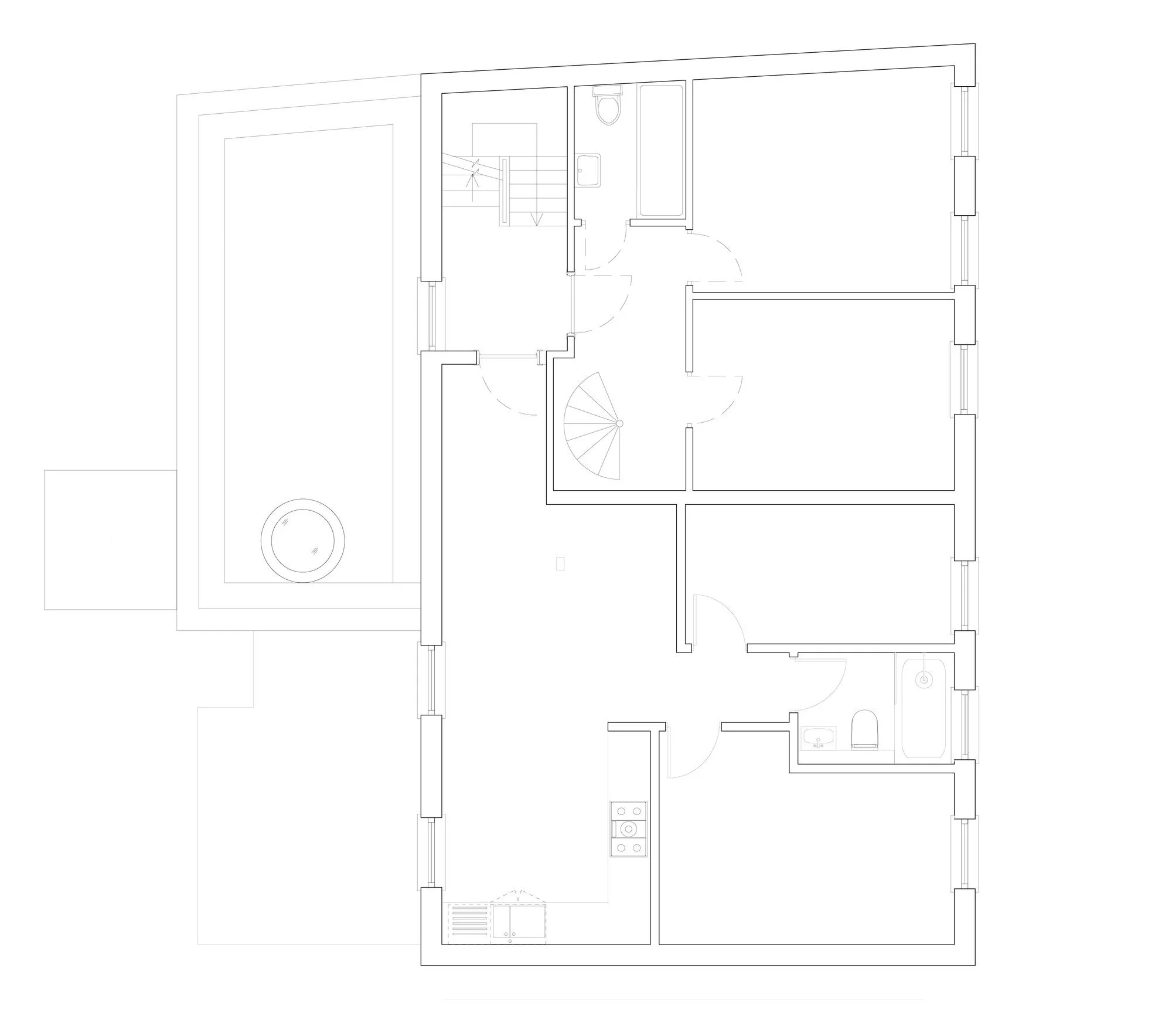
The Rye Lane project consists of 3 flats arranged over a ground floor commercial unit along the busy high street. Studio MTA worked with the private developer to refurbish the flats and create a new layout for a new third floor level. The client brief was to improve the existing flat arrangement and a new flat to create necessary and functional residential units within the tightly knit urban grain of Peckham.